Powerdrive

Powerdrive PL-FR * Automatic linear sliding door system in escape and rescue routes for large and heavy doors of up to 160 kg leaf weight

Powerdrive
  • Escape route function with redundant drive design
  • Very powerful drive for large, heavy leaves and wide opening widths
  • Can be networked, and integrated into the building automation via open standard (BACnet)
  • Independent error recognition and recording
  • Adjustment options for all door movement parameters
  • Freely configurable inputs and outputs for different functions
Show more
  • Integrated, rechargeable battery for emergency opening in case of safety-relevant faults, such as power failure
  • Various mechanical and electrical locks are optionally available
Contact us

Application Areas

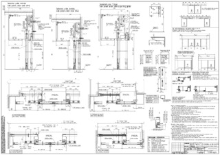
  • Single and double leaf sliding door systems along escape and rescue routes
  • Interior and exterior doors with high access frequency
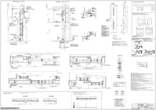
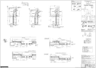
  • Opening widths from 700 to 3000 mm possible
  • Door leaf weights of up to 160 kg per leaf
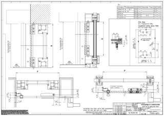
  • Suitable profile systems are fine-framed profile systems with ISO and mono glass, toughened safety glass clamping profile, on-site frame and wooden leaves

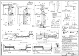
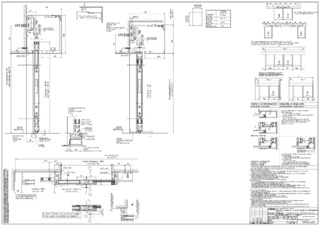
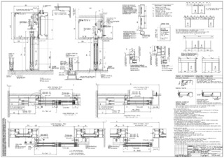
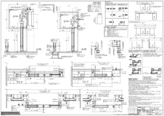
Technical data

Powerdrive PL-FR
For 1-leaf door systems Yes
For 2-leaf door systems Yes
Fine-framed insulating glass Yes
MONO glass fine-framed Yes
ESG clamping profile Yes
Framed leaf (on site) Yes
Wooden leaf (on site) Yes
Height 150 mm
Depth 185 mm
Leaf weight (max.) 1-leaf 160 kg
Leaf weight (max.) 2-leaf 160 kg
Opening width 1-leaf 700 mm - 3000 mm
Opening width 2-leaf 800 mm - 3000 mm
Service temperature -15 - 50 °C
IP rating IP20
Disconnection from mains Main switch in the drive
Standard conformity AutSchR, DIN 18650, DIN EN ISO 13849: Performance Level D, EN 16005

Downloads

Variants & Accessories

Contact

GEZE Central +82-02-6205-3070