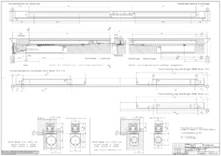
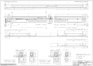
Boxer ISM-EFS * Integrated door closer system for double leaf doors with closing sequence control and electric free swing function
- System comprising two door closers Boxer EFS 4-6 and Boxer 2-4 or 3-6 with ISM guide rail
- Closing force with variable adjustment of EN4-6 on the active leaf, EN3-6 or EN2-4 on the passive leaf
- Can be used for right and left hand doors without conversion
- Door closer is embedded in the door leaf and frame and fulfils the highest design demands
- Closing sequence control holds the active leaf in the waiting position until the passive leaf is closed
- Free swing function makes it possible to pass through the door with little physical force required
- Comfort hold-open function locks the door at the end of the free swing area
- Smoke switch control unit can be connected, whose signal makes the door close automatically in the event of a fire
- Integrated back check, slows down doors that are thrown open forcefully
- Hydraulic latching action which accelerates the door shortly before it is closed
- Closing speed can be individually adjusted
- All functions can be adjusted in the installed state
Application Areas
- Fire and smoke protection doors, proof of suitability for the door required
- Double leaf single-action doors
- Symmetrical and asymmetrical division of door possible
- Single-action doors up to 2800 mm hinge clearance and 1400 mm leaf width, for door weights up to 180 kg
- Minimum hinge clearance 1300 mm, minimum width of passive leaf 540 mm
- For door leaf thicknesses from 50 mm
- Integrated installation
- Hold-open systems with integrated hold-open function with free swing
- Barrier-free access in accordance with DIN 18040
Technical data
| Boxer ISM-EFS | |
| Closing force in accordance with EN 1154 | EN 2 - 6 |
| Barrier-free in accordance with DIN 18040 up to leaf width (max.) in mm | 1400 mm |
| Leaf width (max.) | 1400 mm |
| Leaf weight (max.) | 180 kg |
| Type of installation | Concealed |
| Opening angle (max.) | 120 ° |
| Minimum hinge clearance | 1300 mm |
| Minimum passive leaf width | 540 mm |
| Suitability for fire protection doors | Yes |
| Closing force adjustable | Yes, stepless |
| Adjustable closing speed | Yes |
| Latching action adjustable | Yes, via valve |
| Back check integrated | Yes, hydraulically adjustable |
| Position of closing force adjustment | Top |
| Hold-open function | Optional |
| Hold-open device on the active leaf / passive leaf | Yes / Optional |
| Closing sequence control integrated | Yes |
Downloads
LABELLING OBLIGATION: © GEZE GmbH
Variants & Accessories
* Notice about the products displayed
The products mentioned above may vary in form, type, characteristics and function (design, dimensions, availability, approvals, standards etc.) depending on the country. For questions please contact your GEZE contact person or send us an E-Mail .