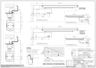
Lintel casing bracket * For standard guide rail
- With drill holes for fixing
Application Areas
- Installation of the guide rail in the lintel if installed on the opposite hinge side
Downloads
LABELLING OBLIGATION: © GEZE GmbH
Variants & Accessories
* Notice about the products displayed
The products mentioned above may vary in form, type, characteristics and function (design, dimensions, availability, approvals, standards etc.) depending on the country. For questions please contact your GEZE contact person or send us an E-Mail .